2535 Imperial, Ontario, CA 91761
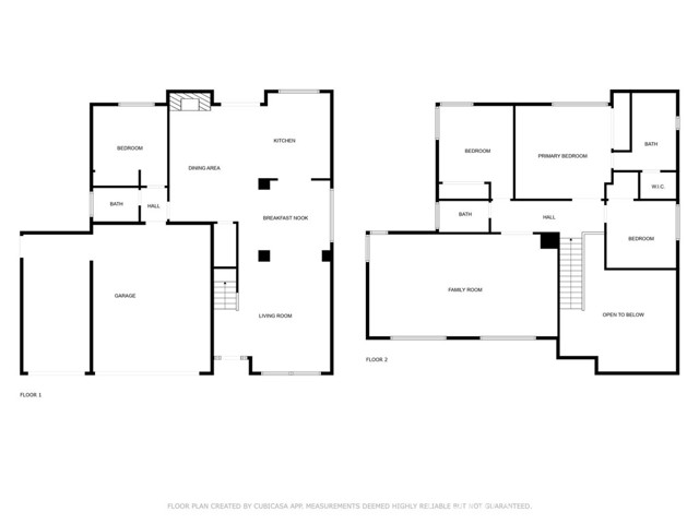
Bedrooms: 4
Bathrooms: 3
Area: 2430 SqFt.
Welcome to 2535 S Imperial Place in Ontario, CA! This 4-bedroom, 3-bathroom pool home spans an impressive 2,430 sq. ft., showcasing a thoughtfully designed open-concept layout that floods the space with natural light and creates a warm, inviting atmosphere perfect for entertaining. As you walk inside you'll notice the vaulted ceilings in the formal living room, dinning room opens to the kitchen and family room. You will also find a bedroom and bathroom in the main floor perfect for guests. Upper level, you'll find a spacious master suite complete with a private bathroom, plus two additional bedrooms, bath and a large bonus room. But the real gem awaits outside! The backyard has a remodeled pool, ideal for summer gatherings and relaxation. Additionally, the property includes ample RV parking, providing convenience for all your adventures. This home truly offers the perfect blend of comfort, style, and functionality. Don’t miss your chance to make it yours!
CA DRE #01870580
6965 El Camino Real 105-690, Carlsbad CA 92009
877.692.8427



This information is deemed reliable but not guaranteed. You should rely on this information only to decide whether or not to further investigate a particular property. BEFORE MAKING ANY OTHER DECISION, YOU SHOULD PERSONALLY INVESTIGATE THE FACTS (e.g. square footage and lot size) with the assistance of an appropriate professional. You may use this information only to identify properties you may be interested in investigating further. All uses except for personal, non-commercial use in accordance with the foregoing purpose are prohibited. Redistribution or copying of this information, any photographs or video tours is strictly prohibited. This information is derived from the Internet Data Exchange (IDX) service provided by Sandicor®. Displayed property listings may be held by a brokerage firm other than the broker and/or agent responsible for this display. The information and any photographs and video tours and the compilation from which they are derived is protected by copyright. Compilation © 2017 Sandicor®, Inc.
© Copyright 2025 Lincoln Realty Group. Powered by 
One fine body…
