500 Manhattan, Hermosa Beach, CA 90254
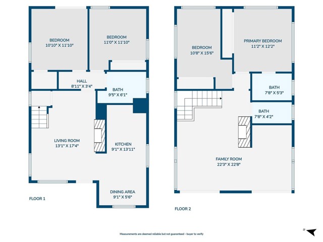
Bedrooms: 4
Bathrooms: 3
Area: 2000 SqFt.
This west facing house blends coastal charm with thoughtful design and highest quality finishes. Enjoy high ceilings, 3 skylights, six sleek ceiling fans and abundant natural light in two living areas with all new windows! Upstairs includes the primary bedroom/bath which have vaulted ceilings, a second bedroom/bath, an expansive family room with fireplace and beach facing balcony. Downstairs includes two bedrooms and bath with a tub/shower, the kitchen and another family room, which also has a fireplace. All four bedrooms are designed with custom closets for maximum storage with double hanging bars and multiple shelves. With living space in two areas, the layout provides both privacy and multiple spots to enjoy relaxing or working. Premium Bosch appliances, wide plank white oak floors and stairs, new solid wood doors throughout, custom cabinetry in kitchen/bathrooms, Ann Sacks tile, two gas fireplaces--all within a house shaped to have the maximum open vista to South Bay coast line. Every surface is freshly painted. Outside includes a private patio with a Dutch door to enjoy wonderful afternoon sun and evening sunsets, along with an upstairs 2nd floor balcony with a wide view of horizon, and a cozy patio in back. The Strand and ocean are two blocks away and this home is close enough to enjoy downtown Hermosa and all that the pier offers, including 30 restaurants within walking distance. Includes one large private garage, with ideal storage for bikes and beach toys, along with elevated shelf storage for seasonal decorations. Great public schools- Hermosa Beach for K-8 and pick between Manhattan Beach's Mira Costa or Redondo Union for high school. Pets will be considered. Owner pays for water and trash service. No smoking of any substance on the property.
CA DRE #01870580
6965 El Camino Real 105-690, Carlsbad CA 92009
877.692.8427



This information is deemed reliable but not guaranteed. You should rely on this information only to decide whether or not to further investigate a particular property. BEFORE MAKING ANY OTHER DECISION, YOU SHOULD PERSONALLY INVESTIGATE THE FACTS (e.g. square footage and lot size) with the assistance of an appropriate professional. You may use this information only to identify properties you may be interested in investigating further. All uses except for personal, non-commercial use in accordance with the foregoing purpose are prohibited. Redistribution or copying of this information, any photographs or video tours is strictly prohibited. This information is derived from the Internet Data Exchange (IDX) service provided by Sandicor®. Displayed property listings may be held by a brokerage firm other than the broker and/or agent responsible for this display. The information and any photographs and video tours and the compilation from which they are derived is protected by copyright. Compilation © 2017 Sandicor®, Inc.
© Copyright 2025 Lincoln Realty Group. Powered by 
One fine body…
